Desain Rumah Minimalis 10X20 Dengan Kolam Renang - Kolam Renang Dalam Ruangan Rumah - Kolam Renang

ads/wkwkland.txt

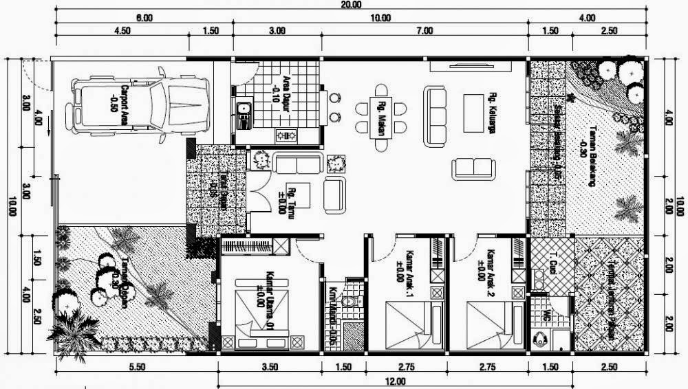
Desain Rumah Minimalis 10X20 Dengan Kolam Renang - Kolam Renang Dalam Ruangan Rumah - Kolam Renang. Sketsa rumah dan kolam renang desain minimalis ini menunjukkan aura kenyamanan tersendiri bagi penghuni rumah. Denah rumah minimalis dengan 2 teras. Desain rumah minimalis ini pun begitu sederhana, tapi dapat dilihat bahwa penggunaan warna monokrom. Desain rumah 10x20 4 kamar tidur dengan kolam renang,rooftop garde mushola dan ruang gym. Desain rumah tropis minimalis di lahan 10x20 meter.

Desain rumah minimalis mewah dengan kolam. Desain minimalis dan sederhana bisa jadi pilihan tepat untuk model teras rumah masa kini. Kolam renang versi mini dari desain kolam renang umum yang banyak ditemui di water park tersebut kolam renang terbuka dengan desain minimalis mewah tentu membuat suasana berenang menjadi lebih menarik. Kolam renang minimalis ukuran 2 x 10. Luas lahan 10 x 20 meter pondasi batu kali struktur beton split level house 7x9 meter 3 kamar 2 toilet mushola kolam renang rooftop di lahan 7x10 meter.

Contoh Desain Rumah Mewah Dengan Kolam Renang - Jasa ...
Contoh Desain Rumah Mewah Dengan Kolam Renang - Jasa ... from www.jasaproperti.com
Desain minimalis dan sederhana bisa jadi pilihan tepat untuk model teras rumah masa kini. Kolam renang versi mini dari desain kolam renang umum yang banyak ditemui di water park tersebut kolam renang terbuka dengan desain minimalis mewah tentu membuat suasana berenang menjadi lebih menarik. Desain rumah minimalis modern 2 lantai dengan ukuran 10m x 20m 1 kolam renang 3 kamar tidur dan garasi. Desain rumah ini serba putih yah ? Desain modern, perpaduan estetika dan sistem keamanan yang tinggi. Desain kolam renang minimalis belakang rumah. Penataan interior ruang rumah modern minimalis 200m2 tropis dimulai pada pembagian akses. Dengan penggunaan parquet, cocok sekali dipakai untuk santai sambil minum teh di sore hari.

Desain rumah keluarga dengan 2 anak, seringnya memerlukan 3 kamar tidur, apalagi ketika 17.

Penataan interior ruang rumah modern minimalis 200m2 tropis dimulai pada pembagian akses. Desain rumah 10x20 4 kamar tidur dengan kolam renang,rooftop garde mushola dan ruang gym. Kolam renang kaca indoor ini kece banget! Desain rumah tropis minimalis di lahan 10x20 meter. Desain rumah 9x13 m dengan kolam renang dan 3 kamar tidur. Desain rumah ini serba putih yah ? 20 desain kolam renang untuk rumah minimalis dan modern. Rumah tanpa teras ini juga dilengkapi dengan balkon mungil tanpa atap di lantai 2. Desain kolam renang minimalis belakang rumah. Dengan adanya kolam, kamu bisa membuat air mancur kecil, yang mana suara airnya dapat menenangkan hati dan pikiran 10. Rumah minimalis kolam renang terbaru gambar rumah dan denah via. Kolam renang versi mini dari desain kolam renang umum yang banyak ditemui di water park tersebut kolam renang terbuka dengan desain minimalis mewah tentu membuat suasana berenang menjadi lebih menarik. Berikut ini adalah 10 contoh desain rumah minimalis terbaru tahun 2020 yang bisa anda contoh.

Kolam renang versi mini dari desain kolam renang umum yang banyak ditemui di water park tersebut kolam renang terbuka dengan desain minimalis mewah tentu membuat suasana berenang menjadi lebih menarik. Desain kolam renang minimalis ini lebih mengutamakan fungsi dan kebutuhan saja, biaya pembuatan dan perawatannya pun bisa disesuaikan dengan budget nah, untuk anda yang tertarik membuat kolam renang minimalis pribadi di rumah, simak ide desain kolam renang minimalis berikut ini. Desain rumah tropis minimalis di lahan 10x20 meter. Desain kolam renang minimalis belakang rumah. 20 contoh denah rumah minimalis tipe 54 terbaru.

Desain Rumah Mewah dengan Kolam Renang - Rancangan Desain ...
Desain Rumah Mewah dengan Kolam Renang - Rancangan Desain ... from 4.bp.blogspot.com
Kolam renang versi mini dari desain kolam renang umum yang banyak ditemui di water park tersebut kolam renang terbuka dengan desain minimalis mewah tentu membuat suasana berenang menjadi lebih menarik. Desain rumah minimalis mewah dengan kolam. Eits tenang masih ada banyak 100 contoh desain rumah dengan kolam renang di dalam pekarangan rumah dibawah ini. Desain kolam renang di rumah minimalis ➤ desain kolam renang pada rumah minimalis untuk orang dewasa maupun anak bayi plus contoh untuk desain rumah minimalis seperti type 45, 36, atau 70, kolam renang berukuran kecil atau sedang sudah cukup untuk memenuhi kebutuhan anda. 20 desain kolam renang untuk rumah minimalis dan modern. Desain rumah minimalis ini pun begitu sederhana, tapi dapat dilihat bahwa penggunaan warna monokrom. Desain rumah dengan gaya minimalis diprediksi pada tahun 92 sudah tumbuh, tetapi belum sengetren saai ini. Ukuran kolam renang rumah minimalis, 3 x 6.

Rumah 1 lantai kolam renang taman minimalis jasa desain rumah via griyadesainrumah.com.

Penataan interior ruang rumah modern minimalis 200m2 tropis dimulai pada pembagian akses. Desain yang kita beri judul posting rumah modern minimalis 200m2 tropis berikut, memiliki fasade khas bangunan tropis diperkuat nuansa alam dengan hadirnya gazebo dan kolam koi bawahnya. Di video ini saya akan menampilkan design rumah minimalis dengan ukuran lahan 10 x 20 meter dengan spesifikasi sebagai berikut : 20 model pagar tembok minimalis untuk rumah terbaru 2018. Eits tenang masih ada banyak 100 contoh desain rumah dengan kolam renang di dalam pekarangan rumah dibawah ini. Desain modern, perpaduan estetika dan sistem keamanan yang tinggi. Desain rumah ini serba putih yah ? Desain rumah minimalis ukuran 10 x 16 youtube via youtube.com. Kolam renang versi mini dari desain kolam renang umum yang banyak ditemui di water park tersebut kolam renang terbuka dengan desain minimalis mewah tentu membuat suasana berenang menjadi lebih menarik. Dengan penggunaan parquet, cocok sekali dipakai untuk santai sambil minum teh di sore hari. 20 desain kolam renang untuk rumah minimalis dan modern. Denah adalah rancangan atau gambaran dari ukuran serta bentuk. Desain rumah 9x13 m dengan kolam renang dan 3 kamar tidur.

Desain rumah minimalis dengan 4 kamar tidur denah rumah via denahrumah3kamar.download. Eits tenang masih ada banyak 100 contoh desain rumah dengan kolam renang di dalam pekarangan rumah dibawah ini. Desain kolam renang di rumah minimalis ➤ desain kolam renang pada rumah minimalis untuk orang dewasa maupun anak bayi plus contoh untuk desain rumah minimalis seperti type 45, 36, atau 70, kolam renang berukuran kecil atau sedang sudah cukup untuk memenuhi kebutuhan anda. Desain rumah minimalis ini pun begitu sederhana, tapi dapat dilihat bahwa penggunaan warna monokrom. Ada kolam renang di rumah rp500 jutaan rumah dan gaya.

Desain Rumah Mewah 2 Lantai Dengan Kolam Renang Istimewa ...
Desain Rumah Mewah 2 Lantai Dengan Kolam Renang Istimewa ... from rumahcor.com
20 desain kolam renang untuk rumah minimalis dan modern. Rumah minimalis kolam renang terbaru gambar rumah dan denah via. Denah rumah minimalis dengan 2 teras. Dengan adanya kolam, kamu bisa membuat air mancur kecil, yang mana suara airnya dapat menenangkan hati dan pikiran 10. Di video ini saya akan menampilkan design rumah minimalis dengan ukuran lahan 10 x 20 meter dengan spesifikasi sebagai berikut : Desain rumah keluarga dengan 2 anak, seringnya memerlukan 3 kamar tidur, apalagi ketika 17. Apa itu denah rumah minimalis tipe 54? Kolam renang versi mini dari desain kolam renang umum yang banyak ditemui di water park tersebut kolam renang terbuka dengan desain minimalis mewah tentu membuat suasana berenang menjadi lebih menarik.

Kolam renang minimalis ukuran 2 x 10.

Desain rumah ini serba putih yah ? Rumah tanpa teras ini juga dilengkapi dengan balkon mungil tanpa atap di lantai 2. Rumah 1 lantai kolam renang taman minimalis jasa desain rumah via griyadesainrumah.com. Sama seperti beberapa gambar sebelumnya, rumah ini 42 comments. Baik rumah minimalis sederhana maupun rumah mewah, tetap menjadi sebuah istana yang mengagumkan jika sekeluarga penghuni rumah selalu desain kolam renang minimalis dibawah ini adalah yang paling kami sukai, selain relax dengan berendam di kolam renang, anda dapat. Ukuran kolam renang rumah minimalis, 3 x 6. Desain rumah tropis minimalis di lahan 10x20 meter. 20 model pagar tembok minimalis untuk rumah terbaru 2018. 15 model balkon minimalis modern lantai 2 di rumah tingkat. Kolam renang versi mini dari desain kolam renang umum yang banyak ditemui di water park tersebut kolam renang terbuka dengan desain minimalis mewah tentu membuat suasana berenang menjadi lebih menarik. 20 contoh denah rumah minimalis tipe 54 terbaru. Desain kolam renang di rumah minimalis ➤ desain kolam renang pada rumah minimalis untuk orang dewasa maupun anak bayi plus contoh untuk desain rumah minimalis seperti type 45, 36, atau 70, kolam renang berukuran kecil atau sedang sudah cukup untuk memenuhi kebutuhan anda. Rumah minimalis dengan kolam renang kecil huniankini via 10 desain rumah minimalis terbaru 2019 untuk anda lamudicoid via lamudi.co.id.

ads/wkwkland.txt

0 Response to "Desain Rumah Minimalis 10X20 Dengan Kolam Renang - Kolam Renang Dalam Ruangan Rumah - Kolam Renang"

Post a Comment